横浜市港北区下田町3丁目の新築一戸建

7,490万円

神奈川県横浜市港北区下田町3丁目

東急東横線「日吉」駅バス11分「さくらが丘」停歩4分

価格
7,490万円
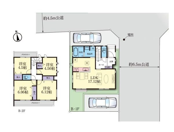
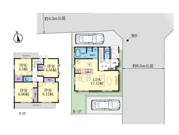
間取り
4LDK
土地面積
100.39㎡
所在地
神奈川県横浜市港北区下田町3丁目
交通

東急東横線日吉」駅 バス11分 「さくらが丘」 停歩4分

建物面積
90.05㎡
築年月
2026年1月(新築)

物件の特徴

  • TVモニタ付きインターホン

セールスポイント

駐車スペース2台可(車種による)!全居室収納スペース付きで広々住空間。

ポイント

駐車スペース2台可(車種による)!全居室収納スペース付きで広々住空間。

基本情報

販売戸数
-
総戸数
-
間取り / 詳細
4LDK
向き
-
建物面積(坪数)
90.05㎡(27.24坪)
土地面積(坪数)
100.39㎡(30.36坪)
建ぺい率 /
容積率
50%/100%
築年月
2026年1月(新築)
駐車場 /
月額料金
有(2台) -
土地権利
所有権
土地
(敷金 / 保証金)
- / -
建物構造
木造 / 2階建
傾斜地部分面積
-
路地状敷地
-
私道負担面積
-
セットバック
-
高圧線下面積
-
施工会社
-
用途地域
第一種低層住居専用
地目 / 地勢
宅地 / -
接道状況
二方(北 公道 4.5m)(東 公道 6.5m)
国土法届出要否
不要
都市計画
市街化区域
総区画数 /
販売区画数
-/-
現況
完成済み
その他
法令上の制限
高度地区/準防火地域
取引態様
仲介
引渡し
相談
取引条件の
有効期限
2026年02月17日

設備条件

設備条件
  • バルコニー / 都市ガス / 公営水道 / 公共下水 / 24時間換気システム / 電気有 / 駐車2台可 / 床下収納 / TVモニタ付インターホン
設備(その他)
    -

その他

物件番号
99927219
管理コード
030001-103163
建築確認番号
第HPA-25-07533-1号
情報更新日
2026年02月03日
次回更新予定日
2026年02月17日
取扱会社
  • 株式会社スターライフ
  • 神奈川県横浜市西区南幸2丁目11番1号 横浜エム・エスビル 2階
  • TEL:045-314-0021
  • 神奈川県知事 (8) 第18811号
備考
B号棟

支払いシミュレーション

月々の支払額
9.6
購入希望物件価格
万円
頭金
万円
金利
%
返済額(ボーナス1回分)
万円
返済期間

※ボーナスは自動で年2回分で計算されます。

横浜市港北区下田町3丁目の新築一戸建

横浜市港北区下田町3丁目の新築一戸建

7,490万円

-

4LDK(90.05㎡)

お気軽にお問い合わせください

無料お問い合わせ

株式会社スターライフ

045-314-0021

9:00~20:00 ※定休日受付9:00~18:00

(休:水曜日、第1~第4火曜日)