横浜市鶴見区北寺尾7丁目の新築一戸建

4,680万円

神奈川県横浜市鶴見区北寺尾7丁目

東急東横線「菊名」駅徒歩25分

鶴見線「鶴見」駅バス16分「獅子が谷」停歩4分

東急東横線「綱島」駅バス22分「獅子が谷」停歩3分

価格
4,680万円
間取り
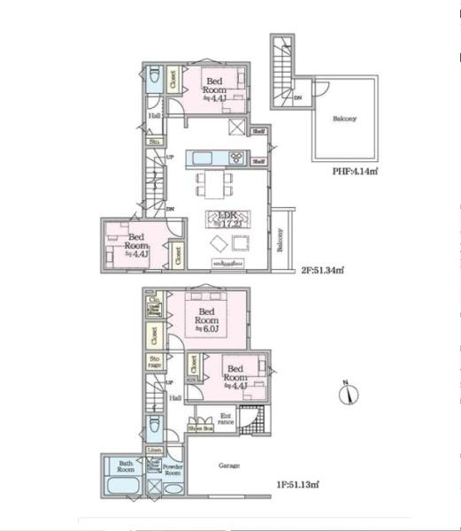
4LDK
土地面積
80.55㎡
所在地
神奈川県横浜市鶴見区北寺尾7丁目
交通

東急東横線菊名」駅 徒歩25分

鶴見線鶴見」駅 バス16分 「獅子が谷」 停歩4分

東急東横線綱島」駅 バス22分 「獅子が谷」 停歩3分

建物面積
106.61㎡
築年月
2025年6月(新築)

物件の特徴

  • TVモニタ付きインターホン

  • 浴室乾燥機

セールスポイント

家事を助ける食洗機、雨の日も安心の浴室乾燥機など、毎日を快適にサポートする設備が充実。暮らしやすさと上質なライフスタイルを両立した、こだわりの住空間です。

ポイント

家事を助ける食洗機 雨の日も安心の浴室乾燥機など 毎日を快適にサポートする設備が充実。暮らしやすさと上質なライフスタイルを両立した こだわりの住空間です。

基本情報

販売戸数
-
総戸数
-
間取り / 詳細
4LDK
向き
-
建物面積(坪数)
106.61㎡(32.24坪)
土地面積(坪数)
80.55㎡(24.36坪)
建ぺい率 /
容積率
60%/200%
築年月
2025年6月(新築)
駐車場 / 月額
有 / -
土地権利
所有権
土地
(敷金 / 保証金)
- / -
建物構造
木造 / 2階建
傾斜地部分面積
-
路地状敷地
-
私道負担面積
-
セットバック
-
高圧線下面積
-
施工会社
-
用途地域
第一種住居
地目 / 地勢
宅地 / -
接道状況
一方(東 9.7m)
国土法届出要否
不要
都市計画
市街化区域
総区画数 /
販売区画数
-/-
現況
完成済み
その他
法令上の制限
高度地区/準防火地域
取引態様
仲介
引渡し
相談
取引条件の
有効期限
2026年04月28日

設備条件

設備条件
  • 都市ガス / 公営水道 / 公共下水 / 食器洗い乾燥機 / 浴室乾燥機 / 温水洗浄便座 / トイレ2ヶ所 / TVモニタ付インターホン / 複層ガラス
設備(その他)
    -

その他

物件番号
99539153
管理コード
030001-102723
建築確認番号
第24KAK建03642号
情報更新日
2026年04月14日
次回更新予定日
2026年04月28日
取扱会社
  • 株式会社スターライフ
  • 神奈川県横浜市西区南幸2丁目11番1号 横浜エム・エスビル 2階
  • TEL:045-314-0021
  • 神奈川県知事 (8) 第18811号
備考
B号棟・延べ面積にカースペース部分約12.42平米含みます。

支払いシミュレーション

月々の支払額

※実際の金額と異なる場合があります。

購入希望物件価格
万円
頭金
万円
金利
%
返済額(ボーナス1回分)
万円
返済期間

※ボーナスは自動で年2回分で計算されます。

よく見られている物件

  1. 横浜市中区本牧元町の中古一戸建

    横浜市中区本牧元町

    4LDK (97.20㎡)

    4,980万円

  2. 横浜市青葉区美しが丘3丁目の中古一戸建

    横浜市青葉区美しが丘3丁目

    3LDK (108.67㎡)

    8,380万円

  3. 逗子市久木8丁目の中古一戸建

    逗子市久木8丁目

    4LDK (90.53㎡)

    3,697万円

  4. 横浜市鶴見区馬場2丁目の新築一戸建

    横浜市鶴見区馬場2丁目

    2SLDK (90.04㎡)

    5,180万円

横浜市鶴見区北寺尾7丁目の新築一戸建

横浜市鶴見区北寺尾7丁目の新築一戸建

4,680万円

-

4LDK(106.61㎡)

お気軽にお問い合わせください

無料お問い合わせ

株式会社スターライフ

045-314-0021

9:00~20:00 ※定休日受付9:00~18:00

(休:水曜日、第1~第4火曜日)